Halbgasse: hofseitige 2-Zimmer-Altbauwohnung (Hochparterre) I unbefristet

map 1070 Wien, Nähe: Halbgasse, Kandlgasse

€ 1.494,23 /Monat

Galerie öffnen

Pläne


Zur Immobilie

beziehbar: 1.4.2026
Termine ab: 3.3.2026

Sehr hübsche Altbauwohnung am Hochparterre eines Altbaugebäudes nahe der Kaiserstraße/ Westbahnstraße.

VIDEO: https://youtu.be/3KmgI9YR_OU

LAGE
Supermärkte, Restaurants, Shops, Apotheken etc. befinden sich im nahen Umfeld. Öffentliche Verkehrsmittel sind einfach zu Fuß erreichbar und verbinden rasch mit anderen Bezirken.

ÖFFIS
U6, 5, 48A, 49

OBJEKT
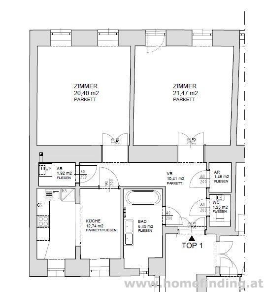
Die Wohnung selbst weist folgende Räume auf:

.zentrales Vorzimmer
.Wohn-Esszimmer
.separate Küche mit Fenstern
.Schlafzimmer
.Bad (Wanne, Fenster)
.separates WC
.2x Abstellraum

Ausstattung:
.Parkett- und Fliesenböden
.Keller

VORAUSSETZUNGEN
.monatliches Netto-Haushaltseinkommen > 3-fache der Miete
.3 aktuelle Gehaltszettel/ Arbeitsvertrag/ ESt-Bescheid
.Bürge: monatliches Nettoeinkommen > 4-fache der Miete

KOSTEN
Miete: inkl BK, inkl MwSt,
Kaution: 4 BMM
Der Makler vertritt ausschließlich den Vermieter. Es besteht ein wirtschaftliches Naheverhältnis.

EXPOSÉ

Allgemeines


Objektnummer11772
ImmobilientypWohnung

Kosten


Nettomiete€ 1.179,55
Bruttomiete€ 1297.51
Betriebskosten brutto€ 196.72
Gesamtmiete€ 1.494,23
Kaution€ 5977

Basisdaten


Wohnfläche76.1m2
Zimmer2
Schlafzimmer1
Bad1
WC1
AlterAltbau
Zustandsehr gut
Verfügbar absofort
Vertragsartbefristet

Ausstattung


HeizungsartEtagenheizung
BodenParkettboden
Parken--
Kücheja
Liftja

Angaben zum Energieausweis


HWB (kwh/m2/Jahr)65.9
HWB EnergieklasseC

Ähnliche Ergebnisse:

RESERVIERT --Halbgasse: 2-Zimmer-Altbauwohnung (Hochparterre) I unbefristet

1070 Wien

 2 48m2 1 1

€ 954,86 /Monat

OBJEKT DETAILS

beim Spittelberg: sanierte Altbauwohnung (ohne Küche)

1070 Wien

 2 54m2 1 1

€ 990,12 /Monat

OBJEKT DETAILS

beim Spittelberg: sanierte Altbauwohnung (ohne Küche)

1070 Wien

 2 54m2 1 1

€ 990,12 /Monat

OBJEKT DETAILS

Logo Homefinding Immobilien Wien

Kontakt

homefinding.at - Mag Janauer & Göllner GmbH

Kundenfeedback

© 2026 homefinding.at ® - Real Estate Services