repräsentative Altbauwohnung mit Innenhof-Balkon beim Schillerplatz - 7 Zimmer I befristet

map 1010 Wien, Nähe: Schillerplatz, Staatsoper, Burggarten

€ 10.145,95 /Monat

Galerie öffnen

Pläne


Zur Immobilie

Diese repräsentative Mietwohnung befindet sich in einem wunderschönen Haus beim Schillerplatz/ Burggarten bzw. in Gehnähe zur Staatsoper.

VIDEO: https://youtu.be/_UcJIw7Agnc

LAGE
Die nahegelegene Kärntner Straße und auch die Mariahilfer Straße bieten eine perfekte Infrastruktur: Geschäfte, Restaurants, Supermärkte, etc sind zu Fuß erreichbar.

ÖFFIS
1, 2, 71, D, U1, U2, U4

OBJEKT
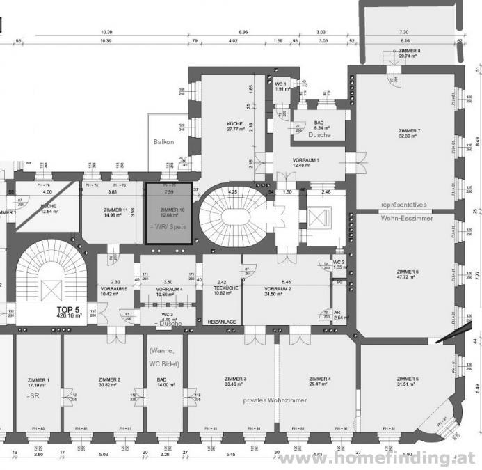
Die Wohnung selbst verfügt über 3 Eingänge. Sie bietet daher einen schönen repräsentativen Bereich und einen Familienbereich. Sie verfügt über folgende Räume:

.geräumiges Vorzimmer
.repräsentatives Wohn-Esszimmer (ca 100m²) mit offenem Kamin
.Bibliothek/ Gästezimmer
.große Küche mit Balkon und Essbereich
.Wirtschaftsraum/Speis
.Duschbad für Gäste
.separates Gäste-WC
.privater Wohnraum (ca 62m²)
.private Teeküche
.Masterbedroom mit Bad (Wanne, WC) und Schrankraum
.2 weitere Schlafzimmer
.Duschbad mit WC
.Gäste-WC
.Abstellraum

AUSSTATTUNG:
.Parkett- und Fliesenböden
.großzügiger Innenhof-Balkon
.mehrere offene Kamine
.tlw. Einbaumöbel (hochwertige Bibliothekswände, perfekt ausgestattete begehbare Garderobe)
.öffentlicher Garagenplatz am Schillerplatz verfügbar (Preis auf Anfrage)
.Beleuchtungskörper großteils vorhanden
.wunderschöne Blick auf den Schillerplatz

KOSTEN
Miete: inkl BK und MwSt
Kaution: 4 BMM
Der Makler vertritt ausschließlich den Vermieter. Es besteht ein wirtschaftliches Naheverhältnis.

EXPOSÉ

Allgemeines


Objektnummer11757
ImmobilientypWohnung

Kosten


Nettomiete€ 8.170,33
Bruttomiete€ 8987.36
Betriebskosten brutto€ 1158.59
Gesamtmiete€ 10.145,95
Kaution€ 30000

Basisdaten


Wohnfläche426.16m2
Zimmer7
Schlafzimmer4
Bad3
WC4
AlterAltbau
Zustandsehr gut
Verfügbar absofort
Vertragsartbefristet

Ausstattung


HeizungsartEtagenheizung
BodenParkettboden
Parken--
Kücheja
Balkonja
Liftja

Angaben zum Energieausweis


HWB (kwh/m2/Jahr)104
HWB EnergieklasseD

Ähnliche Ergebnisse:

VERMIETET: schöne Dachterrassenwohnung beim Rathaus - 2 Schlafzimmer I unbefristet

1010 Wien

 3 82m2 1 1

€ 2.499,66 /Monat

OBJEKT DETAILS

expat flat: furnished 3 rooms I möblierte Altbauwohnung beim Parlament

1010 Wien

 3 94m2 1 1

€ 3.384,85 /Monat

OBJEKT DETAILS

möbliertes Penthouse mit Dachgarten nahe Parlament

1010 Wien

 4 138m2 2 2

€ 5.109,24 /Monat

OBJEKT DETAILS

Logo Homefinding Immobilien Wien

Kontakt

homefinding.at - Mag Janauer & Göllner GmbH

Kundenfeedback

© 2026 homefinding.at ® - Real Estate Services