Baden: schöne 2-Zimmerwohnung - befristet auf 5 Jahre

map 2500 Baden, Nähe: Diagnosezentrum

€ 630,78 /Monat

Galerie öffnen

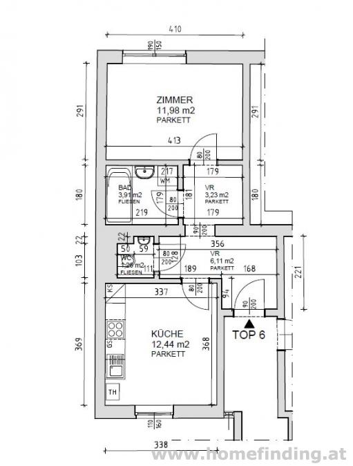
Pläne


Zur Immobilie

Schöne 2-Zimmerwohnung in Baden nahe dem Diagnosezentrum/ Vöslauer Straße

LAGE
Supermärkte (Penny, Spar), Restaurant, Bank, ÖGK, Apotheke befinden sich gleich um die Ecke.

OBJEKT
Die Wohnung bietet folgende Räume:

.Vorzimmer
.Wohn-Esszimmer mit Küche
.Schlafzimmer
.Bad (Wanne)
.separates WC

Ausstattung:
Parkett- und Fliesenböden

VORAUSSETZUNGEN
.monatliches Netto-Haushaltseinkommen > 3-fache der Miete
.3 aktuelle Gehaltszettel/ Arbeitsvertrag/ ESt-Bescheid
.Bürge: monatliches Nettoeinkommen > 4-fache der Miete

KOSTEN
Miete: inkl BK, inkl MwSt
Kaution: 4 BMM
Der Makler vertritt ausschließlich den Vermieter

EXPOSÉ

Allgemeines


Objektnummer11776
ImmobilientypWohnung

Kosten


Nettomiete€ 408,76
Bruttomiete€ 449.64
Betriebskosten brutto€ 181.14
Gesamtmiete€ 630,78
Kaution€ 2523

Basisdaten


Wohnfläche38.34m2
Zimmer2
Schlafzimmer1
Bad1
WC1
Alter--
Zustandsehr gut
Verfügbar absofort
Vertragsartbefristet

Ausstattung


BodenParkettboden
Parken--
Kücheja

Angaben zum Energieausweis


HWB (kwh/m2/Jahr)164.1
HWB EnergieklasseE

Ähnliche Ergebnisse:

VERMIETET: nahe Bischof Faber Platz I 2 große Terrassen, 4 Zimmer, DG-Wohnung

1180 Wien

 4 142m2 2 2

€ 2.500,- /Monat

OBJEKT DETAILS

expat flat: möblierte Altbauwohnung nahe Stadtpark - befristet

1030 Wien

 2 62m2 1 1

€ 951,85 /Monat

OBJEKT DETAILS

VERMIETET --- nahe Schubertpark / Erstbezug: 4 Zimmer - unbefristet

1180 Wien

 4 102m2 1 1

€ 1.985,94 /Monat

OBJEKT DETAILS

Logo Homefinding Immobilien Wien

Kontakt

homefinding.at - Mag Janauer & Göllner GmbH

Kundenfeedback

© 2026 homefinding.at ® - Real Estate Services